群馬県みどり市大間々町桐原
賃料 / 税別40万円
- 賃料
- 税別40万円
- 管理費等
- ―
- 敷金 / 礼金
- 6ヶ月(飲食店は300万円)/1ヶ月
- 所在地
- 群馬県みどり市大間々町桐原781-7
- 主要交通
- わたらせ渓谷鉄道 大間々駅 徒歩12分

お問い合わせ先担当石原
COMMENT視認性の高いロードサイド物件!
国道122号線沿いのコンビニ跡店舗物件です。近隣に小学校、保育園があります。
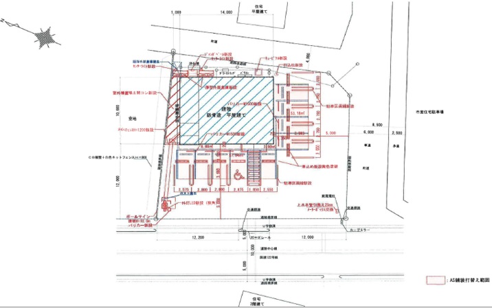
- 構造・規模
- 鉄骨造1階建
- 使用部分面積
- 約45坪
- 築年月
- 契約期間
- 土地面積
- 約198坪
- 用途地域
- 非線引き区域
- 駐車場
- 有 無料(空き10台)
- 状態
- 空/前テナント:コンビニ
- 引渡し
- 相談
- 設備
- トイレ 合併浄化槽(14人槽)
- 出店可能業種
- 飲食店、軽飲食(カフェ・喫茶店など)、その他飲食店、美容・健康・介護、小売・物販、アミューズメント、塾・スクール、その他
- 特記事項
- 飲食店可(敷金300万円)

