中古物件
【価格変更】高崎市箕郷町生原★中古住宅
築年月 平成2年5月(平成13年増築済)
- 価格
- 1130万円
- 所在地
- 高崎市箕郷町生原1984-18
- 主要交通
- JR上越線/群馬総社駅
- 情報公開日
- 2024.08.20

お問い合わせ先担当上田
COMMENT病院やスーパーも近く、生活便利な住環境!箕郷町生原の中古住宅です。
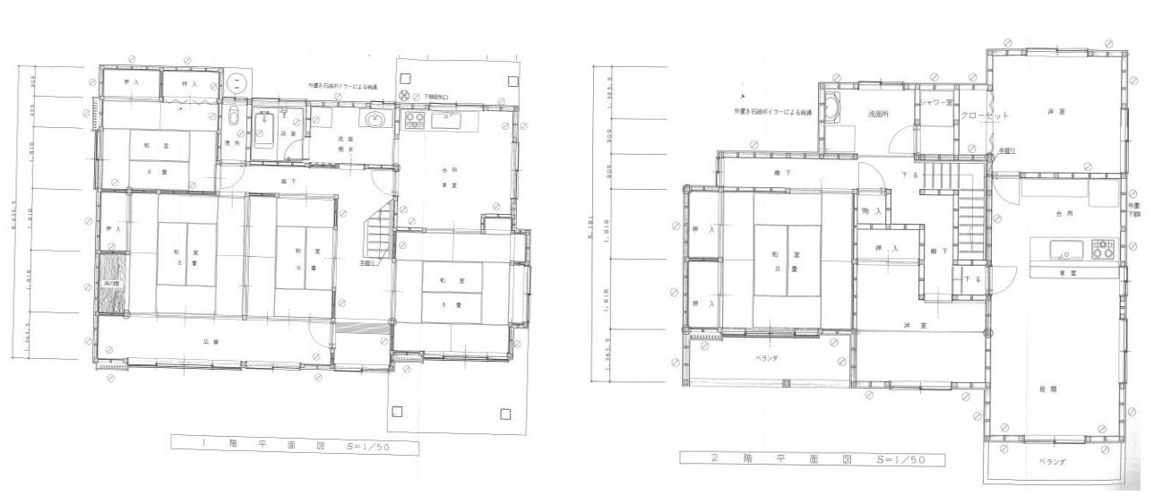
- 構造
- 木造瓦葺2階建
- 土地面積
- 257.40㎡(77.86坪)
- 建物面積(増築後)
- 1階/85.92㎡
2階/110.32㎡
合計 196.24㎡(59.36坪)
- 地目
- 宅地
- 都市計画
- 非線引き区域
- 用途地域
- 無指定
- 建蔽率・容積率
- 70%・200%
- 土地権利
- 所有権
- 地勢
- 平坦
- 設備
- 上水道 浄化槽 プロパンガス 東京電力
- 現況
- 空家
- 接道
- 東側4.0m(公道)
- 引渡
- 相談
- 取引形態
- 専任媒介
その他備考
・内覧ご希望の際には事前にご連絡ください・建物増築分未登記の為、登記必要
・室内品のご相談あり
◆JR群馬総社駅 約7,000m
◆市立箕郷東小学校 約950m
◆市立箕郷中学校 約1,300m
◆フレッセイ箕郷店 約2,000m
◆セブンイレブン 約1,000m
◆二之沢病院 約750m
◆カインズ箕郷店 約3,700m




キッチンが1Fと2Fに2ヶ所あり、浴室の他にシャワールームもあるので二世帯入居可能です!
中二階もあるので趣味のお部屋など、利用方法が色々考えられますね!
周辺は車輌の通行が少なく、騒音なども気にならない住環境です。
陽当たりも良いので、ぜひお家の中をご覧ください。
※内覧をご希望の際には事前に弊社までご連絡ください